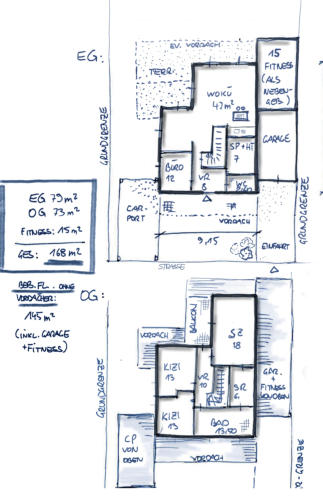
ERSTENTWURF

konzeptioneller Entwurf, der die Raumaufteilung und erste Grundrisslösungen beinhaltet.

PLANUNG

Basis für die Projektkalkulation und für die Einreichung. Natürlich können jederzeit Änderungen vorgenommen werden.

3D DARSTELLUNG

Wie der Baukörper auf dem Grundstück wirkt, kann man sich in einer dreidimensionalen Darstellung genauer vorstellen. Natürlich von allen Seiten.

“VIEL LICHT UND WENIG ENERGIEVERBRAUCH”

Moderne Architektur mit nachhaltiger Bausweise zu verbinden sind die Wünsche vieler moderner Bauherrn. Die richtige Balance zwischen Ökonomie und Ökologie zu finden, gepaart mit Architektur, die den Geist der Bewohner wiederspiegelt, ist der Kern unserer Zusammenarbeit.

“HAUS IN HANGLAGE”

Nichf immer so schwierig wie man denkt. Übergeben Sie die Problemlösung in professionelle Hände. Hanglagen können viele Vorteile haben: wunderbare Aussicht, natürliche Belichtung im Keller, Gartengestaltung mit Infinity-Pools,.. Gemeinsam finden wir das Design, dass zu Ihrem Grundstück und Ihren Träumen passt.

“BARRIEREFREIER BUNGALOW”

Wohnen auf einer Ebene - nicht mehr nur für Best-Ager, und alle die es werden wollen, sondern für Familien, die die Großzügigkeit eines Bungalows schätzen und umsetzen möchten. Offenes Wohnkonzept mit wenig engen Ecken und Stufen. Durch die größere Fläche wird hier auf die Grundstücksform besondere Rücksicht genommen.

Beratungstermin unter:

+43 676 94 555 46

office@blinke.at
Dipl. Ing. Birgit Linke, staatlich befugte und beeidete Ziviltechnikerin 1130 Wien
© blinke (!)
Häuser sind so vielfältig wie ihre Bewohner. Im Laufe meiner Arbeit habe ich viele individuelle Wünsche und Grundstücke kennengelernt. Ein Haus z.B. in Fertigbauweise zu bauen steht mit dem richtigen Partner nicht im Widerspruch zu individueller Architektur. Wenn Nachhaltigkeit, kurze Bauzeit und ein festgelegtes Budget genauso wichtig sind, wie das Design, dann steht einem ersten Informationsgespräch nichts mehr im Wege.

DER WEG ZU IHREM TRAUMHAUS

Am Beginn steht unser erstes Kennenlernen. Kompetenz, Sympathie und Vertrauen sollen die Basis unserer Zusammenarbeit bilden. Sofern Sie über den geeigneten Baugrund verfügen, stecken wir die Rahmenbedingungen ab: Ihr Baugrund : der Entwurf soll von Beginn an zu Geländehöhen, Bauvorschriften und Grundstücksgröße passen. Ihr   Budget : für die nächsten Jahre möchten Sie auch finanziell sorgenfrei in Ihrem Traumhaus leben. Wir ermitteln gemeinsam den finanziellen Rahmen und ich zeige Ihnen, was innerhalb Ihres Budgets möglich ist. Ihr Entwurf soll sich stets in einem realen Umfeld bewegen. Nur so können wir sicherstellen, dass aus der “Traumwolke” bald ein reales Heim für Sie wird. Im Zuge der weiteren Planung wird der Kostenrahmen stets im Auge behalten, damit der endgültige Entwurf eine reale Basis hat, die zeitnah umgesetzt werden kann.

ERSTENTWURF

konzeptioneller Entwurf, der die Raumaufteilung und erste Grundrisslösungen beinhaltet.

PLANUNG

Basis für die Projektkalkulation und für die Einreichung. Natürlich können jederzeit Änderungen vorgenommen werden.

3D DARSTELLUNG

Wie der Baukörper auf dem Grundstück wirkt, kann man sich in einer dreidimensionalen Darstellung genauer vorstellen. Natürlich von allen Seiten.

“BARRIEREFREIER

BUNGALOW”

Wohnen auf einer Ebene - nicht mehr nur für Best-Ager, und alle die es werden wollen, sondern für Familien, die die Großzügigkeit eines Bungalows schätzen und umsetzen möchten. Offenes Wohnkonzept mit wenig engen Ecken und Stufen. Durch die größere Fläche wird hier auf die Grundstücksform besondere Rücksicht genommen.

“VIEL LICHT UND WENIG

ENERGIEVERBRAUCH”

Moderne Architektur mit nachhaltiger Bausweise zu verbinden sind die Wünsche vieler moderner Bauherrn. Die richtige Balance zwischen Ökonomie und Ökologie zu finden, gepaart mit Architektur, die den Geist der Bewohner wiederspiegelt, ist der Kern unserer Zusammenarbeit.
“HAUS IN HANGLAGE” Nichf immer so schwierig wie man denkt. Übergeben Sie die Problemlösung in professionelle Hände.   Hanglagen können viele Vorteile haben: wunderbare Aussicht, natürliche Belichtung im Keller, Gartengestaltung mit Infinity-Pools,..  Gemeinsam finden wir das Design, dass zu Ihrem Grundstück und Ihren Träumen passt.
© blinke (!)

DER WEG ZU IHREM TRAUMHAUS

Am Beginn steht unser erstes Kennenlernen. Kompetenz, Sympathie und Vertrauen sollen die Basis unserer Zusammenarbeit bilden. Sofern Sie über den geeigneten Baugrund verfügen, stecken wir die Rahmen- bedingungen ab: Ihr   Baugrund: der Entwurf soll von Beginn an zu Geländehöhen, Bauvorschriften und Grundstücksgröße passen. Ihr   Budget: für die nächsten Jahre möchten Sie auch finanziell sorgenfrei in Ihrem Traumhaus leben. Wir ermitteln gemeinsam den finanziellen Rahmen und ich zeige Ihnen, was innerhalb Ihres Budgets möglich ist. Ihr Entwurf soll sich stets in einem realen Umfeld bewegen. Nur so können wir sicherstellen, dass aus der “Traumwolke” bald ein reales Heim für Sie wird. Im Zuge der weiteren Planung wird der Kostenrahmen stets im Auge behalten, damit der endgültige Entwurf eine reale Basis hat, die zeitnah umgesetzt werden kann.
Häuser sind so vielfältig wie ihre Bewohner. Im Laufe meiner Arbeit habe ich viele individuelle Wünsche und Grundstücke kennengelernt. Ein Haus z.B. in Fertigbauweise zu bauen steht mit dem richtigen Partner nicht im Widerspruch zu individueller Architektur. Wenn Nachhaltigkeit, kurze Bauzeit und ein festgelegtes Budget genauso wichtig sind, wie das Design, dann steht einem ersten Informationsgespräch nichts mehr im Wege.
Dipl. Ing. Birgit Linke,  staatlich befugte und beeidete Ziviltechnikerin  1130 Wien